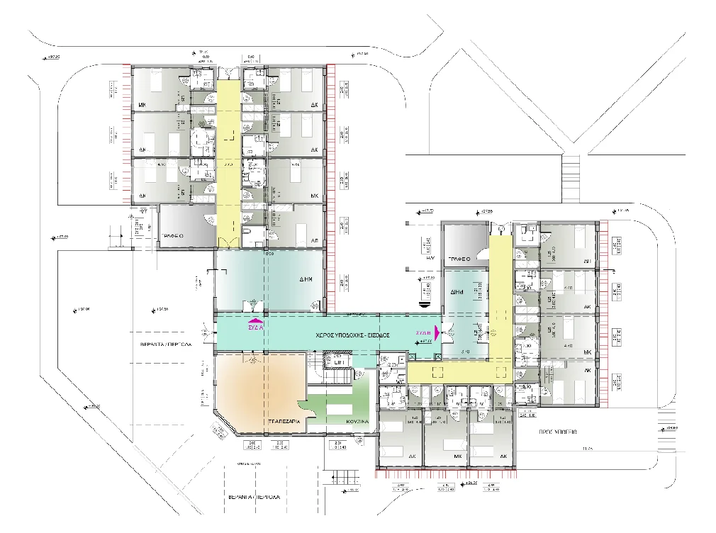
ARGO

Renovation of building housing for Seafarer Parents of Children with Special Needs

Year: 2018
Location: Athens
Project: Renovation
Categories: residential