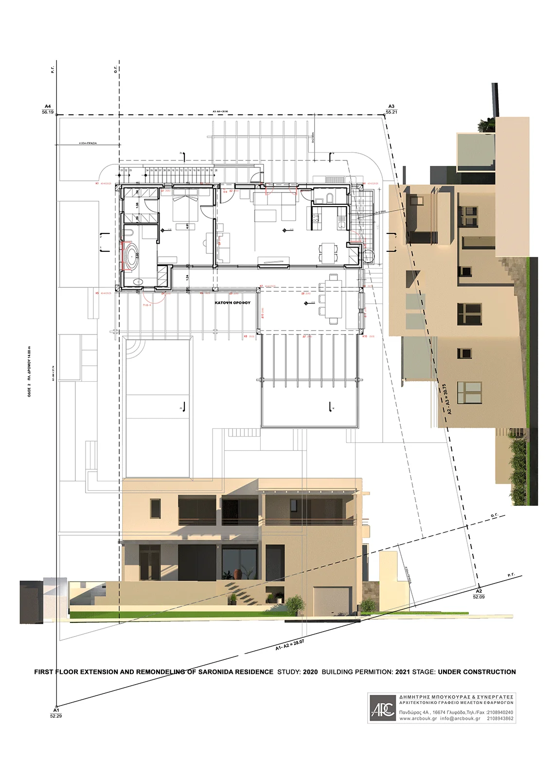
Saronida Residence

Year: 2020
Location: Saronida
Project: Residence
Categories: residential